- Главная
- Готовые проекты
- Двухэтажные дома
- Проект двухэтажного дом 011
Размер:
6 х 9
Этажность:
2
Двухэтажный дом возводился “под ключ”.
ХАРАКТЕРИСТИКИ
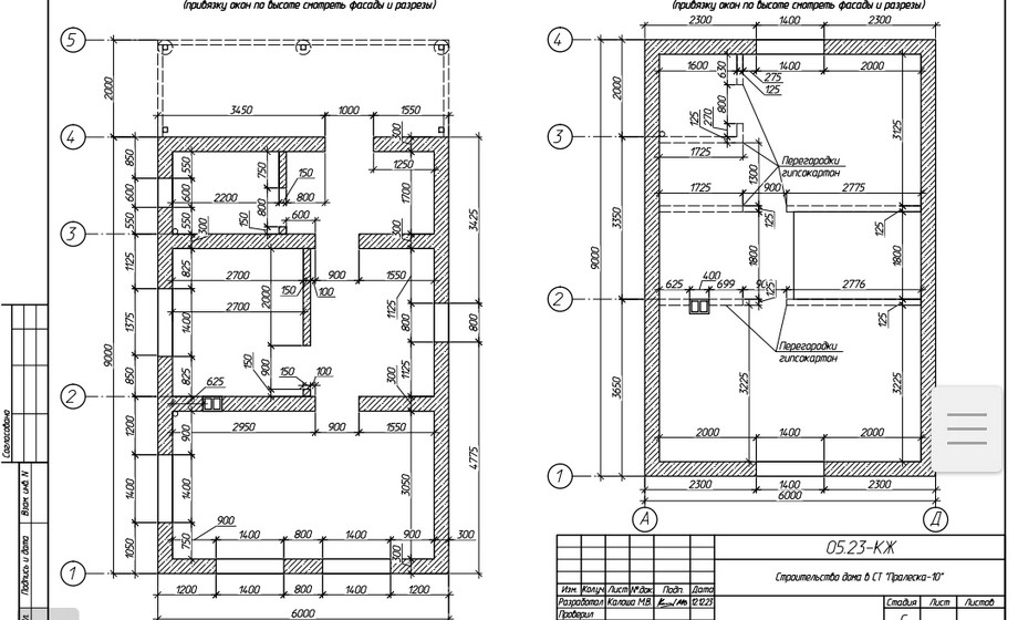
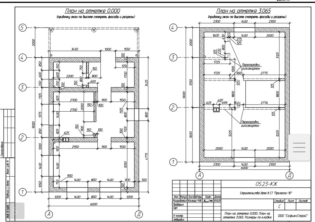
- Площадь - 97 м2
- Кол-во этажей - 2
- Размер – 6 х9 м
На объекте фундамент -монолитный свайно-ростверковый железобетонный. Под террасу столбчатый с цокольными блоками либо терраса в виде площадки с плиткой при планировке участка.
Кладка стен выполнена из газосиликатного блока.
Перекрытия – деревянное.
Крыша- скатная, деревянная стропильная система.
Кровельное покрытие – металлочерепица.
В доме размещены 3 жилые комнаты, а также кухня-гостиная, 2 санузла, ванная, коридор, 2 гардеробные и просторная терраса.
Дом предназначен для проживания семьи из 3-4 человек.
полный комплекс строительных услуг
Создаем проект дома, либо выбираете из готовых
Проводим геодезию участка
Возводим фундамент
Возводим стены и перекрытия
Кровельные работы
Фасадные работы
Инженерные работы
Получистовая отделка
Чистовая отделка
выглядеть ваш дом, мы знаем,
как его построить!
идеи по проектированию зданий и обустройству
участка. Мы создадим для вас настоящий дом
для жизни.








