- Главная
- Готовые проекты
- Двухэтажные дома
- Проект двухэтажного дома 015
Размер:
13 х 8
Этажность:
2
Двухэтажный дом возводился “под ключ”.
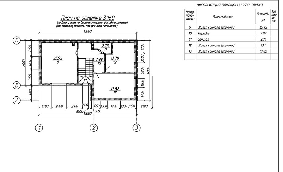
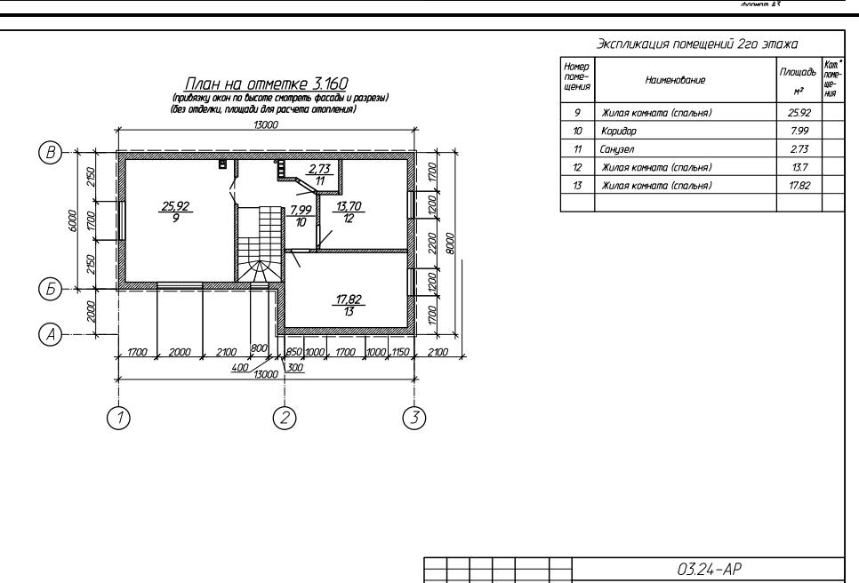
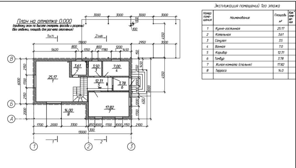
ХАРАКТЕРИСТИКИ
- Площадь - 159 м2
- Кол-во этажей - 2
- Размер – 13 х 8 м
Двухэтажный жилой дом возводился “под ключ”.
На объекте фундамент -монолитный ленточный.
Наружные стены выполнены из газосиликатного блока 300мм, внутренние стены – блоки газосиликатные 300мм, перегородки – блоки газосиликатные 150мм.
Перекрытия - железобетонные пустотные плиты перекрытия высотой 220мм.
Деревянная стропильная система.
Кровельное покрытие – металлочерепица.
В доме размещены 4 жилых комнаты, кухня-гостиная-25,17, топочная-3,61, санузел-3,5, ванная-7, коридор-12, жилая комната 1 эт-18, жилая комната 2 эт-25; 17; 13 (три спальни), терраса -14.
Дом предназначен для проживания семьи из 4-5 человек.
полный комплекс строительных услуг
Создаем проект дома, либо выбираете из готовых
Проводим геодезию участка
Возводим фундамент
Возводим стены и перекрытия
Кровельные работы
Фасадные работы
Инженерные работы
Получистовая отделка
Чистовая отделка
выглядеть ваш дом, мы знаем,
как его построить!
идеи по проектированию зданий и обустройству
участка. Мы создадим для вас настоящий дом
для жизни.









