- Главная
- Готовые проекты
- Одноэтажные дома
- Проект одноэтажного дома и бани 020
Размер:
9 х 16
Этажность:
1
Строительство дома и бани под ключ
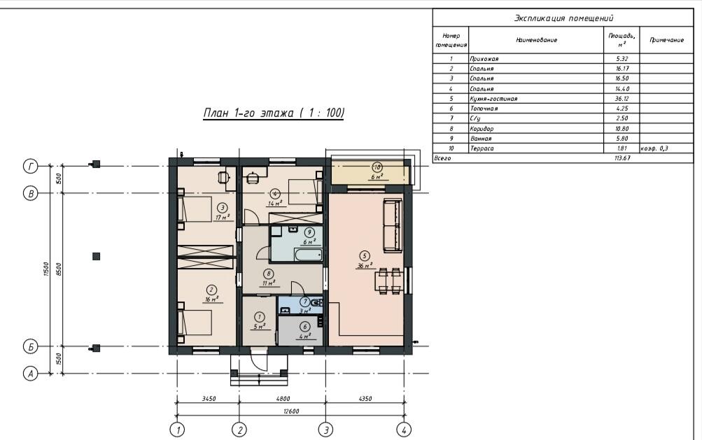
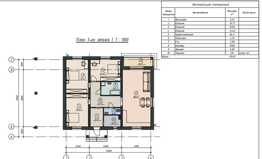
Площадь площадь дома – 113,67 м2
- Размер дома -11,5 * 12,6
- Площадь бани – 51,54 м2
Одноэтажный жилой дом возводился “под ключ”.
На объекте фундамент -свайно-ростверковый фундамент, стены выполнены из газосиликатного блока
Перекрытия - междуэтажные-деревянные балки, стропильная система-деревянная.
Покрытие кровли-металлочерепица.
В доме размещены 3 жилых комнаты по 16 м2,
кухня-гостиная – 36,12 м2,
гардеробные,
прихожая – 5,32,
топочная- 4,25 м2,
санузел- 2,50 м2,
ванная- 5,80 м2,
терраса- 1,81 м2,
коридор- 10,80 м2.
Дом предназначен для проживания семьи из 3-4 человек.
ОПИСАНИЕ ПРОЕКТА бани
На объекте фундамент -свайно-ростверковый фундамент, стены выполнены из газосиликатного блока
Перекрытия - междуэтажные-деревянные балки, стропильная система-деревянная.
Покрытие кровли-металлочерепица.
В бане размещены коридор- 3,60 м2,
Санузел-2,80 м2,
Хозблок -13,50 м2,
Бассейн- 4 м2,
Душевая- 4м2,
Парная- 5м2,
Комната отдыха – 15,18 м2,
Терраса- 346м2.
полный комплекс строительных услуг
Создаем проект дома, либо выбираете из готовых
Проводим геодезию участка
Возводим фундамент
Возводим стены и перекрытия
Кровельные работы
Фасадные работы
Инженерные работы
Получистовая отделка
Чистовая отделка
выглядеть ваш дом, мы знаем,
как его построить!
идеи по проектированию зданий и обустройству
участка. Мы создадим для вас настоящий дом
для жизни.


