- Главная
- Модульные дома и бани
- Модульные дома
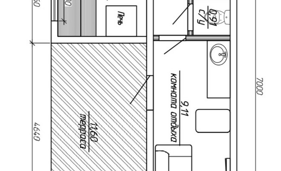
- Модульный дом "Фанипольчанка"
Тип проекта:
Модульный дом
Количество модулей:
2
Д х Ш х В:
1100x6200x3300 мм
Количество комнат:
4
Модульный дом с сауной — комфорт и уют прямо на вашем участке
Этот современный модульный дом сочетает в себе удобство жилого пространства с уникальной возможностью отдыха в собственной сауне. Идеальное решение для тех, кто ценит комфорт, функциональность и быстрый монтаж.
Основные преимущества:
- Комфортабельное жилое пространство: просторная комната, кухня или зона отдыха — всё, что нужно для уютной жизни или отдыха на даче.
- Интегрированная сауна: собственная сауна внутри дома для расслабления и оздоровления в любое время.
- Быстрая установка: модульная конструкция обеспечивает быструю сборку на месте без длительных строительных работ.
- Высокое качество материалов: использование экологически чистых и долговечных материалов для надежности и комфорта.
- Иной уровень отдыха: возможность наслаждаться сауной в любое время, не покидая дом.
Этот модульный дом с сауной — отличный выбор для тех, кто хочет объединить жилое пространство с зоной релаксации, создавая комфортную атмосферу для всей семьи.
Характеристика:
- каркас изготовлен древесины тех.сушки(ель, сосна);
- нижня часть каркаса обработанна мастикой, установлена сетка от грызунов;
- утепление 100 мм ( пол, стены , кровля);
- большие панарамные окна с ламинацией Ral 7016
- фасад: профиль " Фальцит" и имитация бруса .
- кровля: профиль " Фальцит";
- доска пола (ель, сосна) в предбаннике и парной , керамогранит в душевой.
- стены имитация бруса (ель, сосна) в предбаннике и душевой. В парной ольха.
- потолки имитация бруса в предбаннике и душевой, ольха в парной.
полный комплекс строительных услуг
Создаем проект дома, либо выбираете из готовых
Проводим геодезию участка
Возводим фундамент
Возводим стены и перекрытия
Кровельные работы
Фасадные работы
Инженерные работы
Получистовая отделка
Чистовая отделка
выглядеть ваш дом, мы знаем,
как его построить!
идеи по проектированию зданий и обустройству
участка. Мы создадим для вас настоящий дом
для жизни.




