- Главная
- Выполненные проекты
- Строительство дома под ключ
ХАРАКТЕРИСТИКИ
• Площадь - 130 м2
• Кол-во этажей - 1
• Размер – 9 х16 м
ОПИСАНИЕ ПРОЕКТА
Объект построен в садовом товариществе Минского района. Одноэтажный дом возводился “под ключ”.
На объекте фундамент -монолитный.
Кладка стен выполнена из газосиликатного блока, утепление.
Перекрытие – 9м плиты, утепление перекрытия. Есть чердачное помещение 90м.кв. с отдельным входом.
Кровля- двухскатная, деревянная стропильная система. Кровельное покрытие – металлочерепица. Высота потолков 3,25, а в гостинной второй свет -5м.
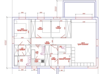
В доме размещены 2 жилые комнаты, 1 мастер спальня со своим гардеробом и санузлом, а также кухня-гостиная, санузел, сауна с санузлом, коридор, просторный тамбур, постирочная с котельной и просторная терраса.
Дом предназначен для проживания семьи из 3-4 человек.
полный комплекс строительных услуг

Создаем проект дома, либо выбираете из готовых

Проводим геодезию участка

Возводим фундамент

Возводим стены и перекрытия

Кровельные работы

Фасадные работы

Инженерные работы

Получистовая отделка

Чистовая отделка
выглядеть ваш дом, мы знаем,
как его построить!
идеи по проектированию зданий и обустройству
участка. Мы создадим для вас настоящий дом
для жизни.