- Главная
- Готовые проекты
- Двухэтажные дома
- Rg3455 - Компактный коттедж с гаражом
Размер дома:
10.9 x 11.7 м
Тип фундамента:
Ленточный
Этажи:
2
Спальни:
2
Санузлы:
1
Наличие второго света:
Нет
Объем пиломатериала для силового каркаса:
-
Сечение стоек наружных стен каркаса:
н/п
Шаг стоек наружных стен каркаса:
н/п
Снеговая/Ветровая нагрузка:
III-II
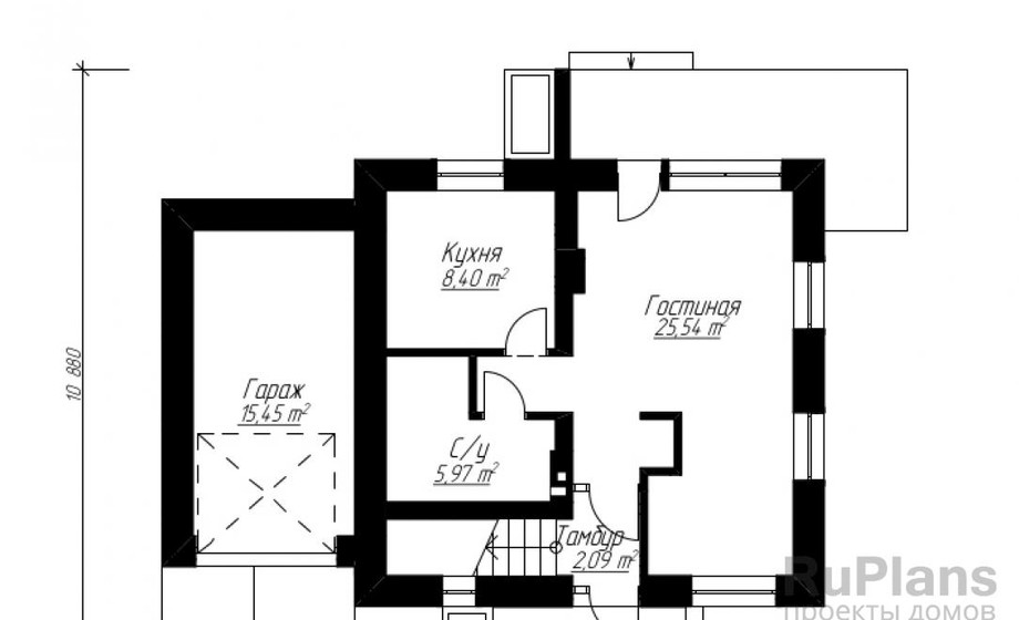
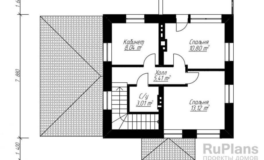
Проект индивидуального двухэтажного жилого дома, размерами 10,88 х 11,68 м. Наружная отделка здания – облицовочный кирпич 2х цветов. Цоколь – клинкерная плитка. Кровля – металлочерепица. Фундамент – ленточный из блоков ФБС. Наружные стены: газобетонные блоки, утеплитель – экструдированный пенополистирол, воздушный зазор, облицовочный кирпич. Внутренние стены и перегородки – забутовочный кирпич. Отделка вентканалов и дымоходов – клинкерная плитка. Пол первого этажа – пол по грунту. Межэтажное перекрытие - сборные плиты перекрытия. Чердачное перекрытие - по деревянным балкам с использованием теплошумоизоляционных материалов типа «URSA» в межбалочном пространстве. Крыша четырехскатная. Окна металлопластиковые, выполненные по индивидуальному заказу.
полный комплекс строительных услуг

Создаем проект дома, либо выбираете из готовых

Проводим геодезию участка

Возводим фундамент

Возводим стены и перекрытия

Кровельные работы

Фасадные работы

Инженерные работы

Получистовая отделка

Чистовая отделка
выглядеть ваш дом, мы знаем,
как его построить!
идеи по проектированию зданий и обустройству
участка. Мы создадим для вас настоящий дом
для жизни.