- Главная
- Готовые проекты
- Двухэтажные дома
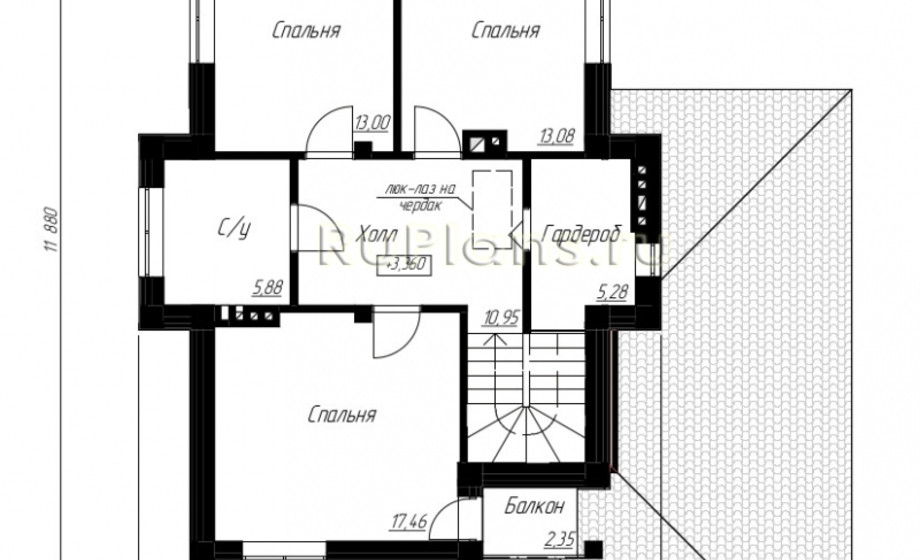
- Rg5000 - Двухэтажный дом с погребом и гаражом
Размер дома:
13.6 x 11.9 м
Тип фундамента:
Ленточный
Этажи:
2
Спальни:
3
Санузлы:
1
Наличие второго света:
Нет
Объем пиломатериала для силового каркаса:
-
Сечение стоек наружных стен каркаса:
н/п
Шаг стоек наружных стен каркаса:
н/п
Снеговая/Ветровая нагрузка:
III-II
Модель проекта индивидуального двухэтажного жилого дома с размерами здания 13,58 x 11,88 м. Наружная отделка здания – декоративные панели. Фундамент – ленточный монолитный ж/б. Наружные стены – монолитный ж/б каркас с заполением теплоблоком. Перегородки - забутовочный кирпич. Пол погреба - пол по гркнту. Пол 1 этажа, межэтажное перекрытие - монолитная ж/б плита. Чердачное перекрытие - деревянные балки. Крыша многоскатная. Кровля – металлочерепица. Окна — металлопластиковые.
полный комплекс строительных услуг

Создаем проект дома, либо выбираете из готовых

Проводим геодезию участка

Возводим фундамент

Возводим стены и перекрытия

Кровельные работы

Фасадные работы

Инженерные работы

Получистовая отделка

Чистовая отделка
выглядеть ваш дом, мы знаем,
как его построить!
идеи по проектированию зданий и обустройству
участка. Мы создадим для вас настоящий дом
для жизни.