- Главная
- Готовые проекты
- Двухэтажные дома
- Rg5195 - Проект индивидуального двухэтажного жилого дома
Размер дома:
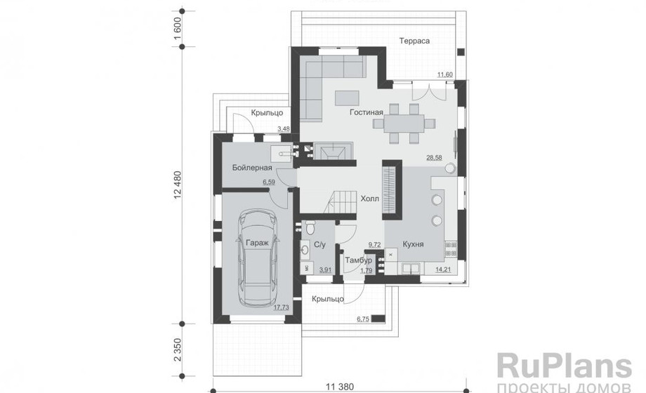
12.5 x 11.4 м
Тип фундамента:
Монолитная плита
Этажи:
2
Спальни:
3
Санузлы:
1
Наличие второго света:
Нет
Объем пиломатериала для силового каркаса:
-
Сечение стоек наружных стен каркаса:
н/п
Шаг стоек наружных стен каркаса:
н/п
Снеговая/Ветровая нагрузка:
III-II
Индивидуальный двухэтажный жилой дом с размерами здания 12,48 х 11,48 м. Наружная отделка здания – штукатурка, деревянные панели. Фундамент – монолитная плита. Наружные стены – газобетонные блоки. Внутренние стены – газобетонные блоки. Перегородки – газобетонные блоки. Пол первого этажа – по сборным ж/б плитам перекрытия. Межэтажные перекрытия – деревянные балки. Крыша четырехскатная. Кровля – металлочерепица. Окна — металлопластиковые. Лестница – сборная железобетонная.
полный комплекс строительных услуг

Создаем проект дома, либо выбираете из готовых

Проводим геодезию участка

Возводим фундамент

Возводим стены и перекрытия

Кровельные работы

Фасадные работы

Инженерные работы

Получистовая отделка

Чистовая отделка
выглядеть ваш дом, мы знаем,
как его построить!
идеи по проектированию зданий и обустройству
участка. Мы создадим для вас настоящий дом
для жизни.