- Главная
- Модульные дома и бани
- Хозблоки
- Хозяйственный блок
Хозблок — это незаменимый элемент на каждом приусадебном участке. Он выполняет ряд важных функций и помогает упорядочить пространство вокруг дома.
Зачем нужен хозблок?
Хранение инструментов
В хозблоке удобно хранить садовые инструменты, которые могут занять много места в гараже или доме.
Рабочее пространство
Здесь можно организовать место для работы с землёй, в том числе для ремонта и обслуживания инструментов.
Уборка и порядок
Хозблок помогает поддерживать порядок на участке, избавляя от лишнего хлама и сохраняя все вещи под одной крышей.
Дополнительная территория
Хозблок может служить также местом для хранения сезонных вещей, мебели или даже для размещения маленькой мастерской.
Эстетичный вид
Правильно оформленный хозблок станет стильным украшением вашего двора, а его внешний вид может гармонировать с остальными постройками на участке.
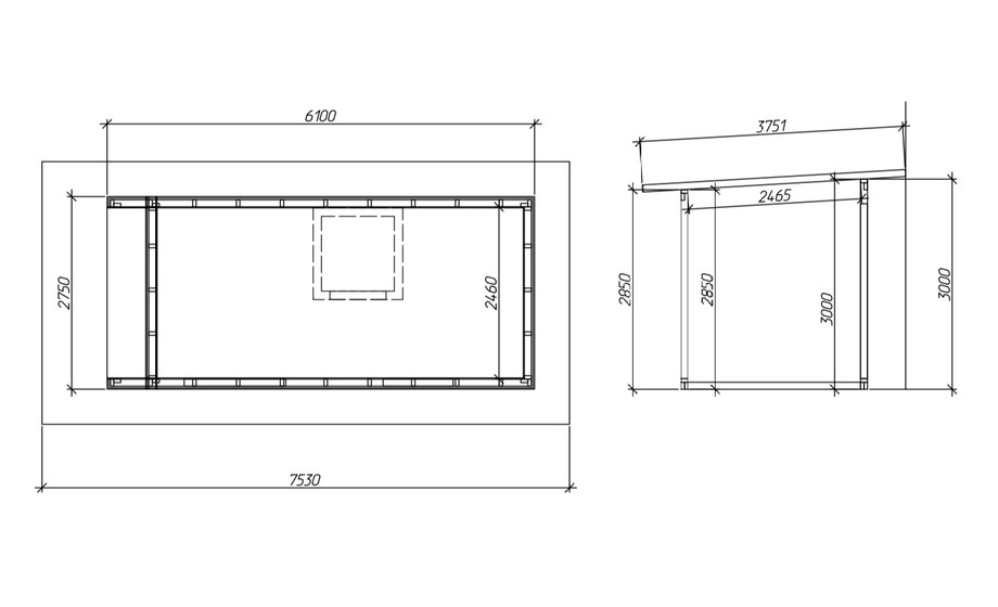
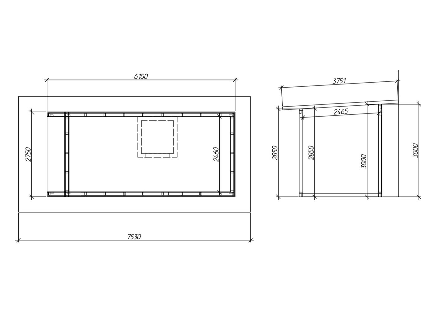
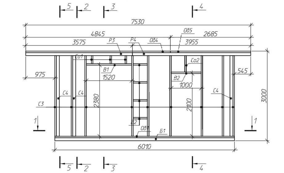
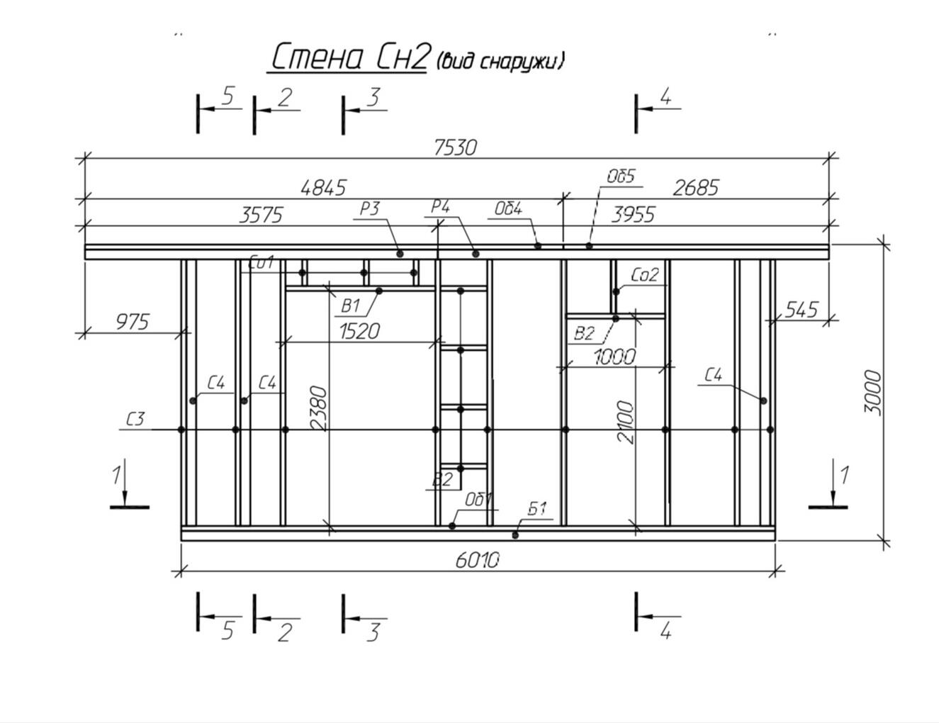
На фото представлен готовый результат хозблока. Данный хозблок стал настоящим помощником в хозяйстве и стильным элементом ландшафта
полный комплекс строительных услуг

Создаем проект дома, либо выбираете из готовых

Проводим геодезию участка

Возводим фундамент

Возводим стены и перекрытия

Кровельные работы

Фасадные работы

Инженерные работы

Получистовая отделка

Чистовая отделка
выглядеть ваш дом, мы знаем,
как его построить!
идеи по проектированию зданий и обустройству
участка. Мы создадим для вас настоящий дом
для жизни.