Строительство дома и бани под ключ
Описание

ХАРАКТЕРИСТИКИ

• Площадь площадь дома – 113,67 м2

• Размер дома -11,5 * 12,6

• Площадь бани – 51,54 м2

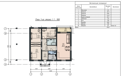
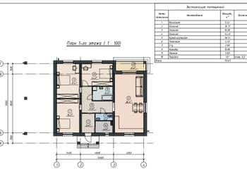
ОПИСАНИЕ ПРОЕКТА ДОМА

Одноэтажный жилой дом возводился “под ключ”.

На объекте фундамент -свайно-ростверковый фундамент, стены выполнены из газосиликатного блока

Перекрытия - междуэтажные-деревянные балки, стропильная система-деревянная.

Покрытие кровли-металлочерепица.

В доме размещены 3 жилых комнаты по 16 м2, кухня-гостиная – 36,12 м2, гардеробные, прихожая – 5,32, топочная- 4,25 м2, санузел- 2,50 м2, ванная- 5,80 м2, терраса- 1,81 м2, коридор- 10,80 м2.

Дом предназначен для проживания семьи из 3-4 человек.

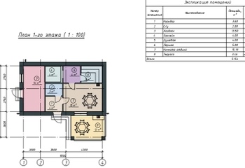
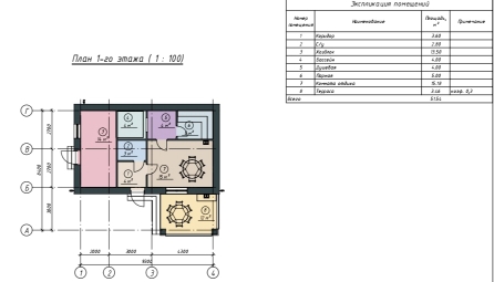
ОПИСАНИЕ ПРОЕКТА БАНИ

На объекте фундамент -свайно-ростверковый фундамент, стены выполнены из газосиликатного блока

Перекрытия - междуэтажные-деревянные балки, стропильная система-деревянная.

Покрытие кровли-металлочерепица.

В бане размещены коридор- 3,60 м2, Санузел-2,80 м2, Хозблок -13,50 м2, Бассейн- 4 м2, Душевая- 4м2, Парная- 5м2, Комната отдыха – 15,18 м2, Терраса- 346м2.

Наши преимущества
Мы строим дома под ключ и берем на себя
полный комплекс строительных услуг

Создаем проект дома, либо выбираете из готовых

Проводим геодезию участка

Возводим фундамент

Возводим стены и перекрытия

Кровельные работы

Фасадные работы

Инженерные работы

Получистовая отделка

Чистовая отделка

Если вы точно знаете, как должен
выглядеть ваш дом, мы знаем,
как его построить!
Наши архитекторы воплотят в жизнь любые ваши
идеи по проектированию зданий и обустройству
участка. Мы создадим для вас настоящий дом
для жизни.

Контакты

  • Минский р-н, п. Сонечный ул. Сосновая д.10 пом. 30
  • +375 (29) 176-72-03
Оставить заявку
Заказать консультацию
Нажимая на кнопку, вы даете согласие на обработку своих персональных данных