Строительство дома под ключ
Описание

ХАРАКТЕРИСТИКИ

• Площадь - 123 м2

ОПИСАНИЕ ПРОЕКТА

Одноэтажный жилой дом возводился “под ключ”.

На объекте фундамент -свайно-ростверковый фундамент, стены выполнены из газосиликатного блока

Перекрытия - железобетонные пустотные плиты перекрытия высотой 220мм.

Площадь кровли составляет 175 м.кв, деревянная стропильная система. Кровельное покрытие – металлочерепица.

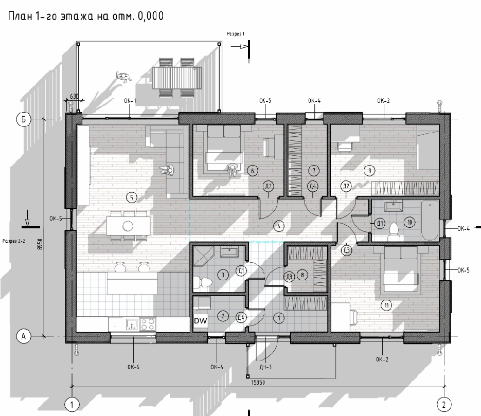
В доме размещены 3 жилых комнаты, кухня-гостиная -40,21, 2 гардеробные, прихожая – 8,25, топочная-3,24, санузел-4,26,ванная-4,96, коридор-12,99.

Дом предназначен для проживания семьи из 4-5 человек.

Наши преимущества
Мы строим дома под ключ и берем на себя
полный комплекс строительных услуг

Создаем проект дома, либо выбираете из готовых

Проводим геодезию участка

Возводим фундамент

Возводим стены и перекрытия

Кровельные работы

Фасадные работы

Инженерные работы

Получистовая отделка

Чистовая отделка

Если вы точно знаете, как должен
выглядеть ваш дом, мы знаем,
как его построить!
Наши архитекторы воплотят в жизнь любые ваши
идеи по проектированию зданий и обустройству
участка. Мы создадим для вас настоящий дом
для жизни.

Контакты

  • Минский р-н, п. Сонечный ул. Сосновая д.10 пом. 30
  • +375 (29) 176-72-03
Оставить заявку
Заказать консультацию
Нажимая на кнопку, вы даете согласие на обработку своих персональных данных